大连体育中心配套开发二期配套小学最新消息

教育百科2022-09-21 19:42:15佚名

大连体育中心配套开发二期配套小学最新消息

  【2021-8-30】

  大连体育中心配套开发二期配套小学建设项目公布

  

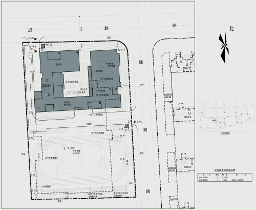
  高清大图点此查看

  大连体育中心配套开发二期配套小学项目位于西北路以东,规划路沿线,规划总面积为19990平方米。

  编号:2020规划第C035号

  项目名称:体育中心配套开发二期配套小学建设项目

  设计单位:都市发展设计有限公司

  建设单位:大连市甘井子区教育局

  工程证号:建字第210211202000035号

  公告期:自2020年9月9日至建设项目规划核实合格之日止

  联系电话:83722760

本文标签: 二期  建设项目  体育中心  子区  大连  

相关推荐

猜你喜欢

大家正在看