
大连市自然资源局公示润泽园小区配套中学项目方案
高清大图点此查看
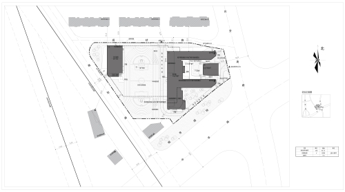
该项目规划用地1.45公顷,总建筑面积222000平方米,位于规划路、中华路、月牙泉路和现状路围城的区域内。
编号:2021规划第C018号
项目名称:润泽园小区配套中学项目
设计单位:大连城建设计研究院有限公司
建设单位:大连市甘井子区教育局
工程证号:建字第210211202100018号
公告期:自2021年5月17日至建设项目规划核实合格之日止
联系电话:83722760
教育百科2022-09-21 19:42:15佚名

大连市自然资源局公示润泽园小区配套中学项目方案
高清大图点此查看
该项目规划用地1.45公顷,总建筑面积222000平方米,位于规划路、中华路、月牙泉路和现状路围城的区域内。
编号:2021规划第C018号
项目名称:润泽园小区配套中学项目
设计单位:大连城建设计研究院有限公司
建设单位:大连市甘井子区教育局
工程证号:建字第210211202100018号
公告期:自2021年5月17日至建设项目规划核实合格之日止
联系电话:83722760
大连体育中心配套开发二期配套小学最新消息