杭州三塘公寓公租房户型图一览(杭州三塘公寓公租房户型图一览)

地方特产2023-04-10 16:44:26未知

杭州三塘公寓公租房户型图一览(杭州三塘公寓公租房户型图一览)

  杭州三塘公寓公租房户型图

  以下图源于:杭州住保房管官网,仅供参考,以实物为准

  

  三塘公寓1单元807,907,1007(仅供参考)

  

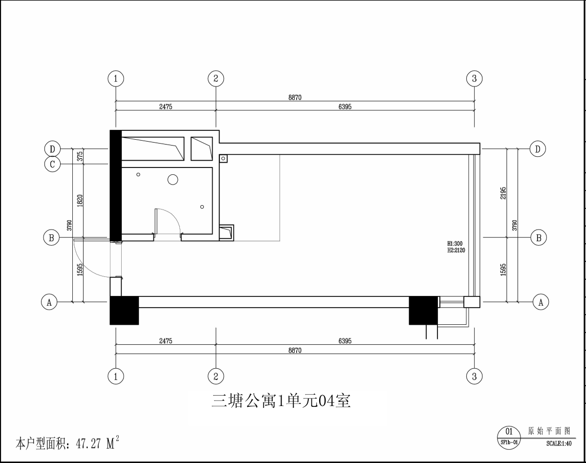
  三塘公寓1单元404,504,704,804,1004(仅供参考)

  [右键“目标另存为”下载原图]

  

  三塘公寓1单元1807(仅供参考)

  

  三塘公寓2单元1001,1005(仅供参考)

  

  三塘公寓3单元1007(仅供参考)

  

  三塘公寓3单元1807(仅供参考)

本文标签: 仅供参考  公寓  单元  杭州  右键  

相关推荐

猜你喜欢

大家正在看