
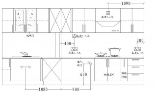
1、地柜高度:按照人体工程学,地柜的高度为780mm较为合适。这个数据也并非一尘不变,可视女主人的身高调整。
2、地柜宽度:这个和水槽的大小有关,能放进最大水槽的宽度即正常的宽度。家用的水槽(洗菜盆)最大的也是470mmX880mm,做橱柜最好以600~650mm左右更为合适,而且更美观。
3、台面厚度:石材的厚度有几种,10mm、15mm、20mm、25mm等,同种石材都有不同的厚度。除了石材,现在流行板饰台面,防火板表面,防潮耐用,选择性更多,成为一种新趋势,厚度有25mm、38mm等。
4、台面高度:橱柜台面的高度在780mm较为合适。
5、底脚线的高度:底脚的高度一般为80mm,可以设计,一般分为石材脚、不锈钢脚、密度板脚、PVC板脚等。
6、抽屉滑轨:一般来说按照设计方式分为三节滑轨、抽邦滑轨、滚轮路轨尺寸分别是:250mm、300mm、350mm、400mm、450mm、500mm、550mm。
7、拉篮与分类:橱柜拉蓝,根据功能性的不同,可分为侧拉蓝,多功能柜体拉蓝,灶台拉蓝,另外还有特殊功能性的拉蓝:大怪物,中怪物,小怪物。





